PREVIOUS PROJECT   /   NEXT PROJECT

25 STEEPLECHASE

 

SIZE: 9000  sf

LOCATION: Aspen, Colorado

STATUS: Completed

 

Due to it’s position at the base of Aspen Highland’s ski area, this lot was considered less desirable than other surrounding lots. Careful planning, orientation, as well as main level elevation, have resulted in important interior and exterior spaces which have uninterrupted views across as well as up valley toward the Maroon Bells.

 

The house was designed to meet the needs of the owner’s immediate family unit, as well as a large extended family. Living areas have been planned to allow the small family unit to enjoy intimate spaces, that can comfortably accommodate the large extended family.

 

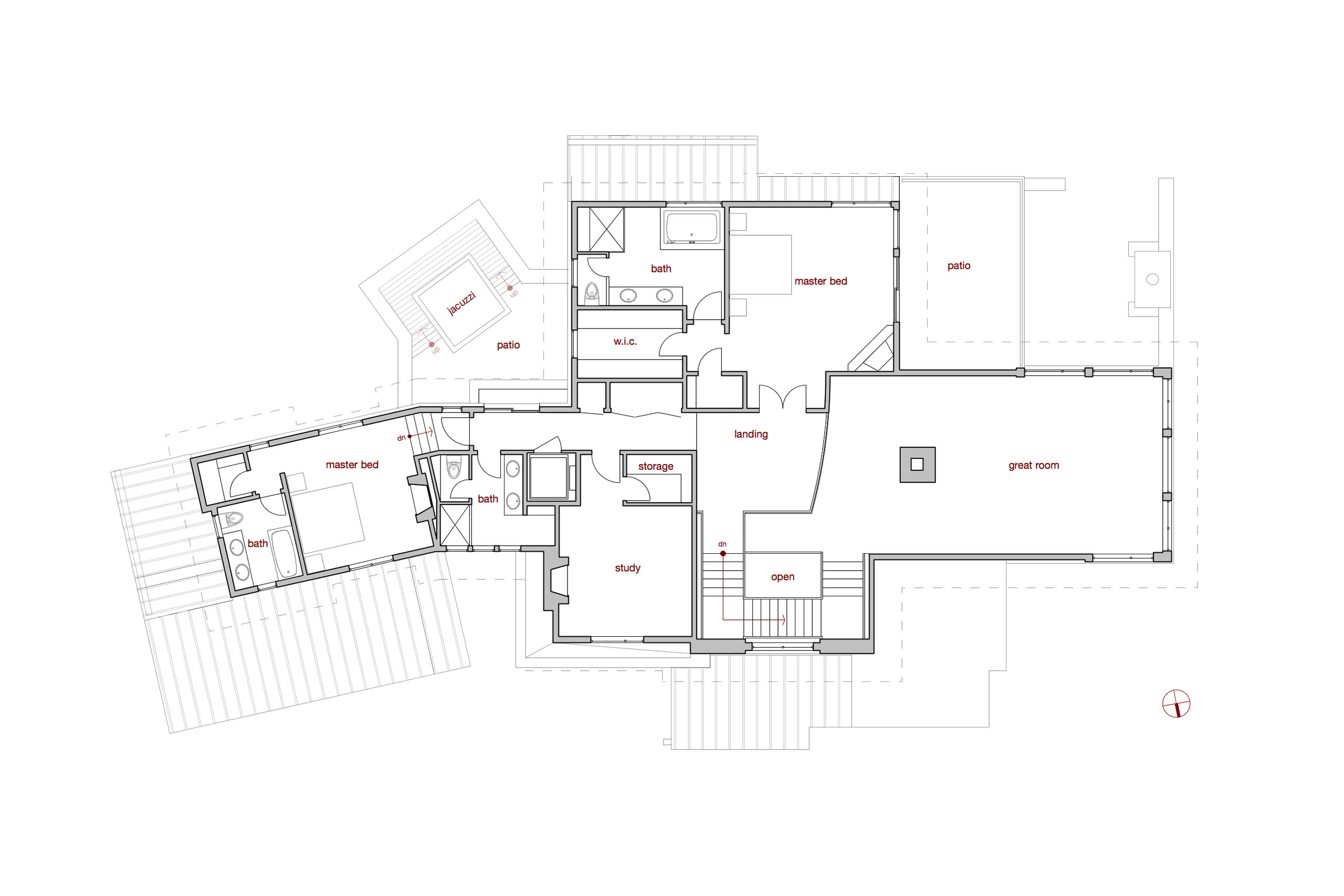
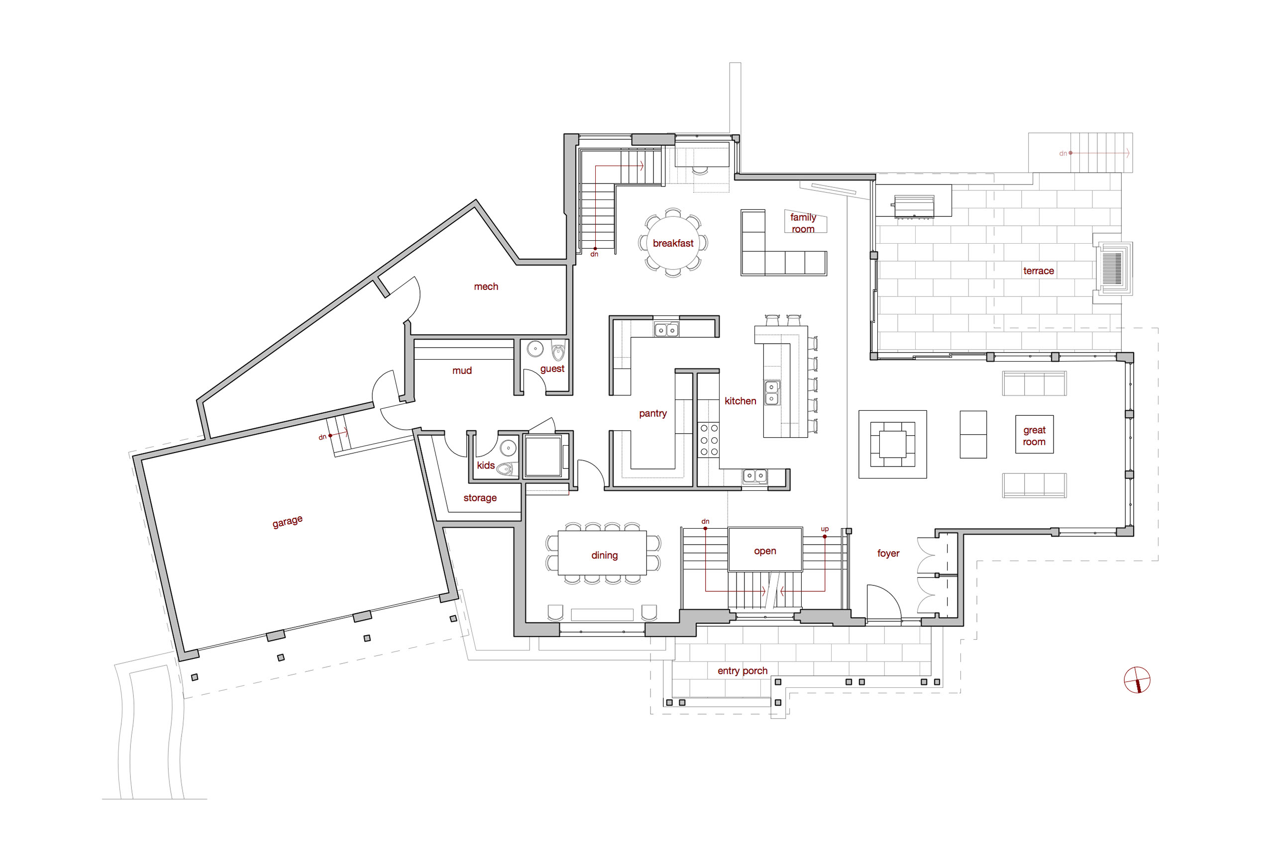
The main level accommodates all living spaces within three thousand square feet; the second floor contains three bedroom suites at two thousand square feet, and the basement with four thousand square feet includes a large play room, four bedroom suites, media room, wine rom, large laundry facility, and seem room. The house is connected vertically via two stairs, as well as an elevator.

COPYRIGHT 2016 REVEAL.DESIGN