PREVIOUS PROJECT   /   NEXT PROJECT

1330 MOUNTAIN VIEW

 

SIZE: 6740 sf

LOCATION: Aspen, Colorado

STATUS: Complete

 

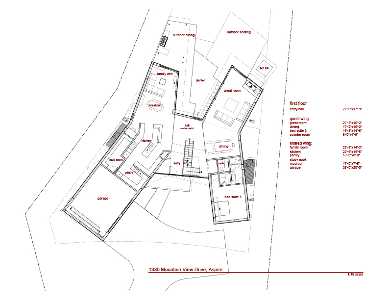
This 15,000 sf site is located on a quiet dead end street off Cemetery Lane, in west Aspen. Located on the north side of the lot, it overlooks a bluff and Red Mountain across the valley.

 

The parti of this home is derived directly from the constraints of the site, which is long and narrow, wider toward the south and narrower toward the north. The plan is composed of two ground floor wings that emulate open arms to receive guests, while at the same time opening to the spectacular views across the valley to the north.

 

The east wing is programmatically dedicated to guest functions; great room, dining area, and guest bedroom suite. The east wing contains the family living functions; garage, mud room, pantry, kitchen and family living room.

 

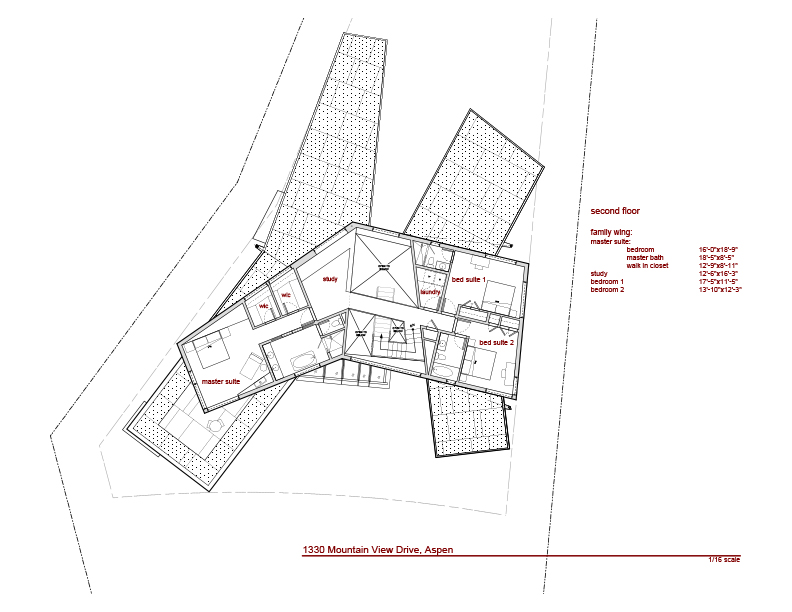
Family rest functions are accommodated in the third wing bridging across both lower level wings, and contains a master suite on the west side, and two en-suite children’s rooms on the east.

 

The central volume created between these wings forms the entry volume - the double height central volume of the house containing a steel stair structure connecting both above grade spaces with the basement, which contains two additional bedroom suites, large kid’s bedroom. wine room, exercise room and media room.

 

The unusual roof lines of the house are designed to maximize views by raising the roof / ceiling lines toward Aspen Mountain, Aspen Highlands, and Red Mountain.

 

This house exceeds Aspen’s already stringent energy standards significantly.

COPYRIGHT 2016 REVEAL.DESIGN