430 HALLAM

 

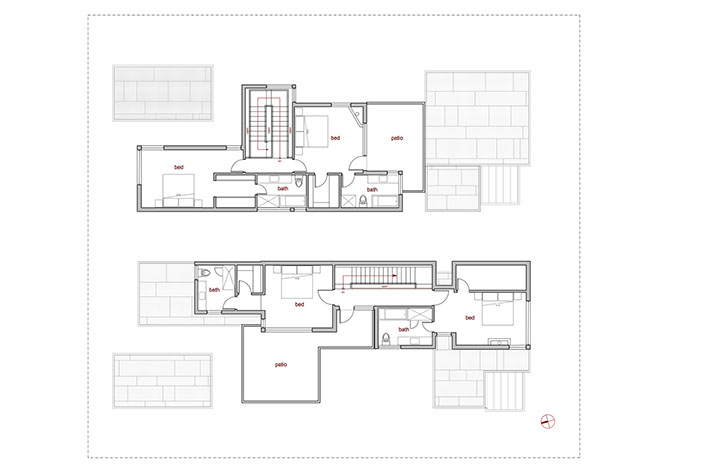
SIZE: East House: 4083 sf

West House: 4056 sf

LOCATION: Aspen, Colorado

STATUS: In Progress

 

The current 4,124 sf house, built in 1959, sits on this nine thousand square foot lot.

The lot is zoned to allow two detached homes to replace the existing home.

 

This project located in the West End of Aspen, is equidistant to, and within walking distance of downtown Aspen as well as the Aspen Institute. The site features a thick stand of trees along West Hallam street resembling a forest; an unusual feature which is the inspiration for the vertically applied dimensional cedar siding of the various volumes of each house.

 

The design of the two new homes focuses on maximizing the livability of the two new structures, by focussing the allowable FAR on main level living spaces - both interior as well as exterior.

Main level living, dining and cooking functions are organized around outdoor living spaces that increase the perceived volume of both interior as well as exterior spaces.

 

Second level programs feature two bedroom suites, with access to open patios. Views of Aspen Mountain to the south and Red Mountain to the north, are features of these spaces.

 

Basement level living areas include three bedroom suites per side, as well as a large play room, and media room.

COPYRIGHT 2016 REVEAL.DESIGN