WORK
ABOUT
CONTACT
PREVIOUS PROJECT / NEXT PROJECT
<
>
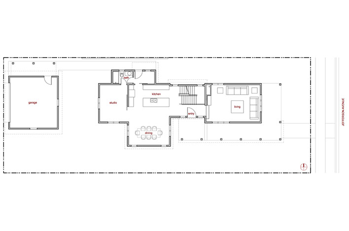
1530 JEFFERSON
SIZE: N/A
LOCATION: Louisville, Colorado
STATUS: Completed
COPYRIGHT 2016 REVEAL.DESIGN